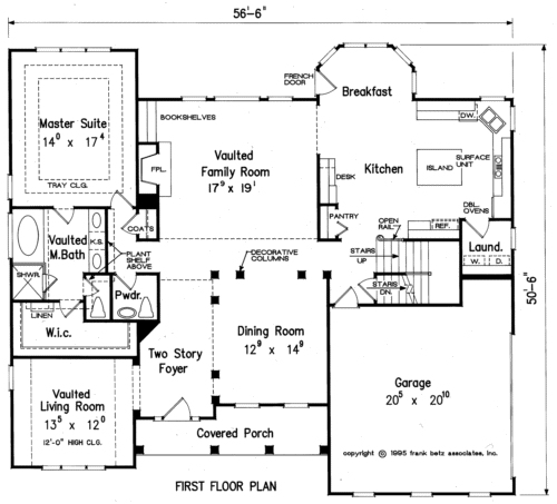
2,806 Square Feet

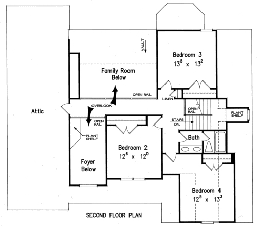
3 Bedrooms

2 1/2 Bathrooms

2 car garage

Features

First Floor Owner Suite

Vaulted Family Room Ceilings

Breakfast Nook

EXTERIOR

  • Brick or Hardi-Plank siding per plan
  • Limited Lifetime Architectural Shingles
  • Full Vinyl Windows with Low-E glass. Includes Contour Grids between the glass and
    PVC brick moulding
  • Insulated garage doors w/ openers and remotes
  • Fiberglass exterior doors
  • Seamless aluminum gutters
  • Matching shutters
  • Composite decking per plan
  • Aggregate driveway, front walkway, and front porch
  • 3 hose bib faucets
  • Front and rear exterior receptacles
  • Exterior anodized aluminum rails

INTERIOR

  • 10’, 9’, 8’ Ceiling height options per plan
  • 3 pc. Crown moulding w/ 2 pc. Chair rail in dining room w/ picture moulding
  • 2 pc. Crown moulding in foyer, living room, kitchen, breakfast room, powder room and
    hallways
  • 2 pc. Crown moulding in master bedroom and master bath
  • 1 pc. Crown moulding upstairs throughout and laundry room
  • Adams oversized door and window casing throughout
  • Baseboard throughout
  • Solid core Masonite interior doors; choice of style
  • Red or white oak flooring in foyer, living room, dining room, kitchen, breakfast area,
    great room, and halls
  • 95+ Gas furnace down w/ humidifier, 16 SEER A/C minimum
  • Plumbing fixtures; choice of color and style per allowance
  • Tile master shower w/ glass doors
  • Copper plumbing supplies, “Quiet” CI drop, Navian on demand water heater w/
    circulating system
  • Wide 42” gas fireplace w/ logs
  • Custom wood shelving in all closets
  • 15 recessed lights
  • Landscaping per allowance
  • Structural wiring network Panel w/ 5.1 prewire, 2 outdoor speakers w/ volume control
  • Choice of 2 wall colors and 1 trim color
  • Christmas light circuit
  • Under cabinet lighting in kitchen
  • Tile backsplash in kitchen
  • Schlage door locks and accessories
  • Wireless security system

ALLOWANCES

  • Granite Tops
  • Cabinets
  • Appliances
  • Carpeting
  • Lighting
  • Tile
  • Landscaping (mulch, sod, plants)
  • Hardwood Flooring (sanded and finished)
  • Exterior Doors Per Plan