Discover our collection of past homes and floor plans. Use one as your starting point or customize every detail. Prefer something unique? We’ll create a fully custom home designed just for you.

Aaron2
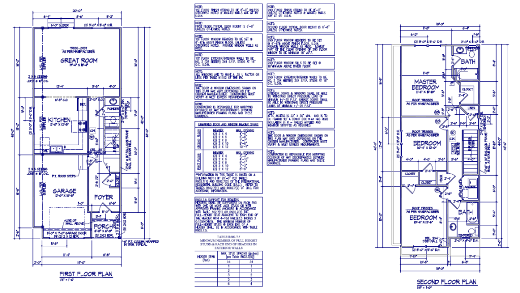
Balmoral
Birch
Blair
Emma
Katherine
Lauren
Melissa Anne
Nichole
River Retreat