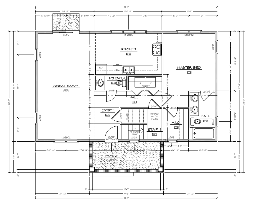
Features

Two Story

Main Floor Owner Suite

Front Covered Porch

Two Second Floor Bedrooms